|
|
|
Etude en installations électriques |
|
|
|
S.C. Projelec réalise des études en installations électriques en raison du cahier de charges (CCTP) et conformément aux normes françaises du domaine. |
|
|
|
1. Plans d’implantation électrique |
|
|
|
|
|
|
|
|
|
|
 |
|
 |
|
|
| |
|
|
|
|
|
Clique sur l’image pour agrandir
|
|
Clique sur l’image pour agrandir
|
|
|
| |
|
|
|
|
|
2.
Plans de liaisons des pieuvres: l’implantation des pieuvres électriques, des lignes directes de courant fort
(circuits spécialisés) et des courants faibles
(Téléphone, Télévision) |
|
2.1. Le cas d’un plancher en dalle béton - pleine ou prédalle |
|
|
|
|
|
 |
|
 |
|
|
| |
|
|
|
|
|
Clique sur l’image pour agrandir
|
|
Clique sur l’image pour agrandir |
|
|
| |
|
|
|
|
|
2.2. Le cas d’un plancher en Faux plafond (boite pavillionaires) |
| |
|
|
|
|
|
|
 |
|
 |
| |
|
|
|
|
|
Clique sur l’image pour agrandir
|
|
Clique sur l’image pour agrandir
|
|
Clique sur l’image pour agrandir
|
| |
|
|
|
|
|
3. Plans de cotations des appareillages électriques: lampes, prises, interrupteurs etc. |
| |
|
|
|
|
 |
|
|
|
|
| |
|
|
|
|
|
Clique sur l’image pour agrandir
|
|
|
|
|
| |
|
|
|
|
|
4. Plans de réservations des appareillages électriques: pour des bâtiments avec des plancher en béton préfabriqué-predalle |
|
|
|
|
|
 |
|
|
|
|
| |
|
|
|
|
|
Clique sur l’image pour agrandir |
|
|
|
|
| |
|
|
|
|
|
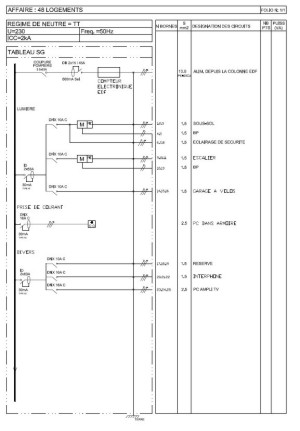
5. Tableaux électriques: tableaux électriques d’abonné et tableaux électriques de services généraux |
| |
|
|
|
|
 |
|
 |
|
|
Clique sur l’image pour agrandir |
|
Clique sur l’image pour agrandir |
|
|
| |
|
|
|
|
|
6. Collonne Montante |
|
|
|
|
 |
|
|
|
|
Clique sur l’image pour agrandir |
|
|
|
|
| |
|
|
|
|
|
7. Collonne France Telecom |
|
|
|
|
 |
|
|
|
|
Clique sur l’image pour agrandir |
|
|
|
|
|
|
|
|
|